Godrej Crest Villas
Sector 27, Greater Noida
- For Sale
- Price starts from Rs.2.65 Cr
-
4 BHK
Godrej Crest Villas in Greater Noida
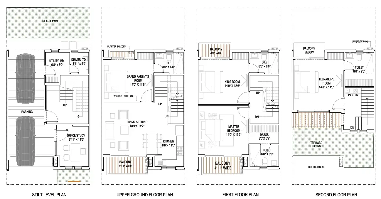
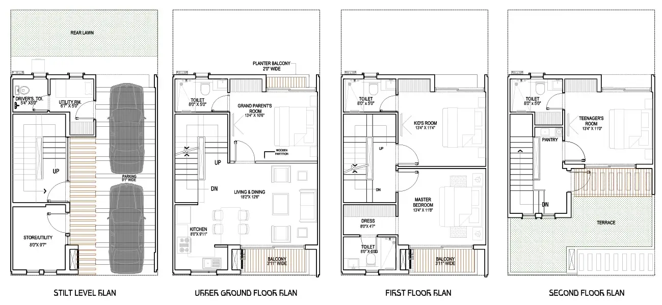
Godrej Crest Villa is considered a prestigious part of the huge city belonging to the Godrej properties in Greater Noida. The project includes luxury villas and homes amid surrounding green spaces and large landscaped gardens. Godrej crest villas Greater Noida is located in the commercial hub of the Delhi-NCR region. It is viewed as one of the best properties that promise fresh air and various amenities like shopping malls, parks, restaurants, hospitals, schools, institutes, and more. The place is also near to Yamuna Expressway and Greater Noida highway. These 4 BHK villas are spread across 2506 Sq. Ft of land that has a total volume of 308 units. When it comes to Godrej crest villas Price, the residential villas come for Rs 2.65 crores, and the highest price is Rs 3.80 crores. This cost is very sensible contrasted with the amenities included.
Key benefits of Godrej crest villas Noida
The soul of Godrej crest villas Greater Noida is to bring residents the experience of both luxury and comfort. It exudes elegance and splendor in every way. These Godrej crest villas are available in 3 BHK, 4 BHK, and 5 BHK areas. Godrej crest villas floor plan is designed considering the space as well as the range.
Special Amenities offered by Godrej Crest Villas
Godrej Golf Links Crest service differs from other builders in the same area. It consists of a landscaped golf park within a few kms. of its boundary. Also, there are several sports facilities accompanied by this project.
Thus, you will get several benefits from which some of them are as discussed:
Service - Power backup, 24X7 Water Supply, Acupressure Park, Clinic, Concierge Service, Yoga/Meditation Area, Intercom, Business Centre, Library, High-Street Retail
Activities - Swimming Pool, Flower Garden, Golf Course, Terrace Garden, Water Softener Plant, Squash Court, Volleyball Court, Children's Play Area, Spa/Sauna/Steam, Badminton Court, Basketball Court, Golf Park, Private Miniplex in Lounge, Marble Games Corner, Classical Dance Classes and so on.
Sports - Internationally Designed 9-Hole Golf Course, Squash Court, Volleyball Court, Sports Area, Cards Room, Pro Shop, Billiards and Snooker, Cycling Track, Cardio Area, Air Hockey, Rock Climbing, Volley Ball, Potters Zone, Bowling Alley and so on.
Some locational benefits of Godrej Crest Villas
The location of the Godrej Crest Villas offers quick access to other major areas of Noida and Delhi. The closeness to the metro corridor and the expressway make it quite smooth to commute to the essential places.
- Noida-Greater Noida Expressway - 10 Mins
- Metro Station (Aqua line) - 5 Mins
- PariChowk - 10 Mins
- Knowledge Park - 15 Mins
- Noida Special Economic Zone - 20 Mins
- Best Hospitals - 15 Mins
Why invest in Godrej Crest Villas Noida?
- Noida-Greater Noida Expressway - 10 Mins
- Metro Station (Aqua line) - 5 Mins
- Pari Chowk - 10 Mins
- Knowledge Park - 15 Mins
- Noida Special Economic Zone - 20 Mins
- Best Hospitals - 15 Mins
- Exclusive small apartment in the living room
- Luxurious golf course and golf club
- Expansive clubhouse
- Exclusive private mini-plex in the lounge
- 100 acres Township Project in Greater Noida
- 9 Hole Golf Course
- 80% Green Panoramic Golf View
- Metro connectivity under construction
- Connected to Gr. Noida Expressway & Yamuna Expressway
- Best infrastructure in Delhi NCR
- Buddh International Circuit
- Private Miniplex in Lounge
- Private Elevator
- Designer Kitchen with Built-In Appliances
- VRV/VRF Air Conditioning
- Walk-in Closet
- Private Party Terrace Deck
Godrej Realty is the child company of Godrej Group. Godrej is the biggest business project in India that spotlights on consumer goods and retail to several landmark constructions, residential and commercial included. The company has a huge portfolio and offers high-quality solutions to customers.
Godrej Crest Villas Amenities
- Security
- balcony
- Open Space
- Greenary
- CCTV Camera
- Meditation Area
- Internet
- Best Environment
- Parking
- Nearby Shops
- Easy Connectivity
- Private Terrace
Godrej Crest Villas Location Map

Godrej Crest Villas Layout Plan

Godrej Crest Villas Floor Plan
Godrej Crest Villas Video
Godrej Crest Villas Frequently Asked Questions
Ans: Godrej Golf Links Crest Villas is registered under UPRERA. The RERA Registration No of Godrej Golf Links Crest Villas is UPRERAPRJ151.
Ans: The price range of Godrej Golf Links Crest Villas is 2.65 Cr. to 3.80 Cr.
Ans: The size range of Godrej Golf Links Crest Villas ranges between 2359 to 6168 Sq.Ft
Ans: The site address of Godrej Golf Links Crest Villas is Godrej Golf Links Crest Villas, nearby Pari Chowk, Yamuna Expressway, Sector 27, Greater Noida, Uttar Pradesh, India.
Ans: The status of Godrej Golf Links Crest Villas is Under Construction.
Ans: The possession date of Godrej Crest Villas is 2022.
Ans: The Godrej Crest Villas total land Area is 100.00 Acres.
Ans: The Godrej Golf Links Crest Villas has 308 Units.
Ans: The Godrej Golf Links Crest Villas has 0 Towers as this is the project of villas.
Ans: The Godrej Golf Links Crest Villas project is approved by GNIDA( Greater Noida Industrial Development Authority).
Ans: The Godrej Golf Links Crest Villas has numerous kinds of Villas.